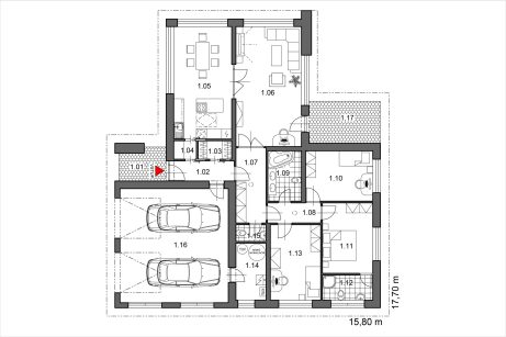
Tento bungalov je zastřešen pultovou střechou s mírným sklonem 10°. Půdorys domu tvoří dvě základní části, klidová a obytná. Ze zádveří je možné přes spíš vstoupit rovnou do kuchyně, dvougaráže nebo šatny. Dále pak pokračujeme do haly, která navazuje na obývací pokoj a druhou část domu, kde se nachází tři pokoje a koupelna. Ložnice rodičů má pak svoji druhou, menší koupelnu s WC. Obývací pokoj je samostatný, od kuchyně s jídelnou je oddělen. Na zahradu se z obývacího pokoje vstupuje francouzskými dveřmi. Fasáda bungalovu kombinuje klasickou omítku a lícové cihlové zdivo.
