Reference rodinný dům Újezd u Průhonic 2020 | Wienerberger

Vzorový e4 dům - Újezd u Průhonic

V programu e4 dům od wienerbergeru byl postaven první vzorový dům e4 v České republice. Tento cihlový rodinný dům byl postaven nedaleko Prahy, v Újezdu u Průhonic, pro rodinu Ing. Karla Vlčka

Projekt prvního vzorového e4 domu pochází z dílny Ing. arch. Bohumila Brůži. Jako vítězný projekt jej ocenila odborná porota v rámci architektonické soutěže „e4 - cihlový dům budoucnosti“, kterou pod záštitou České komory architektů uspořádala v roce 2017 společnost wienerberger.

První e4 dům je naprojektován dle principů e4 tj. jedná se o dům s celokeramickou obálkou z cihelného zdiva Porothermpálené střešní krytiny Tondach včetně systému izolace iRoof. Konstrukčně je využito systému jednovrstvého obvodového zdiva. Dům je postaven dle standardů domu s téměř nulovou spotřebou energie (NZEB). Obálku domu doplňují okna VEKRA a střešní okna VELUX. Dále jsou v domě kotvící technika fisher international a izolace a sádrokartony ISOVER Saint-Gobain. Dům je osazen komínový systém značky SCHIEDEL a potrubí PIPELIFE, Designovým i funkčním prvkem jsou pak fasádní pásky Terca a velkoformátová dlažba Semmerlock. Kuchyně i koupelny domu byly osazeny výrobky z portfolia společnosti SIKO.

devider vertical grey line (white background)
  • Zastavěná plocha - 243,5 m2
  • Užitná plocha přízemí - 177 m2
  • Užitná plocha podkroví - 79,7 m2
  • Obestavěný prostor - 1230 m3
  • Cena projektové dokumentace - 79.900 Kč
Grafika na web WTS

Dispozice vzorového e4 domu

Dům e4 je navržen pro 4 až 5člennou rodinu s dispozicí 5+kk o celkové užitné ploše 257 m2. V přízemí se nachází společenská část domu s obývacím pokojem a kuchyní s vazbou na prostornou terasu, pak pokoj pro hosty a další zázemí domu, jako je dvougaráž a úložné prostory. Do podkroví je situována klidová část domu se dvěma dětskými pokoji, koupelnou s východem na terasu a ložnicí s vlastní šatnou a koupelnou.

devider vertical grey line (white background)
Grafika na web WTS

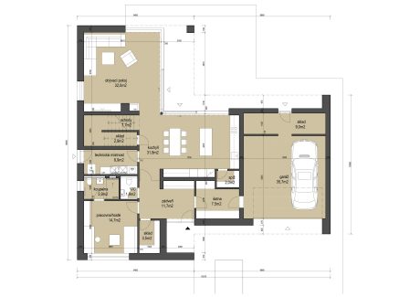
Půdorysy vzorového e4 domu

Přízemí

Půdorysy - přízemí vzorového e4 domu Újezd u Průhonic

Patro

Půdorysy - patro (přízemí) vzorového e4 domu Újezd u Průhonic
Grafika na web WTS

Obsah projektové dokumentace

Projekt e4 dům od wienerbergeru - Újezd u Průhonic

  • A. Průvodní zpráva
  • B. Souhrnná technická zpráva
  • C. Situace stavby 
  • D.1.1 Architektonické a stavebně technické řešení
  • D.1.2 Stavebně konstrukční řešení
  • D.1.3 Požárně bezpečnostní řešení
  • D.1.4.1 Vytápění
  • D.1.4.2 Zdravotechnika 
  • D.1.4.3 Plynoinstalace(pokud je plyn)
  • D.1.4.4 Elektroinstalace 
  • D.1.4.5 Vzduchotechnika(pokud bude)
  • E Průkaz energetické náročnosti budov - PENB

Vzhled vzorového e4 domu po dokončení

Použité produkty vzorového e4 domu

Interiér domu

Kuchyň

Kuchyň se sestává ze dvou částí – ostrůvku a klasické linky. Zajímavostí v obou případech je, že pracovní plocha je tvořena skutečným žulovým kamenem s exotickým názvem Taj Mahal.

Unikátní jsou kamenické spoje u dvou desek pracovní plochy – jsou natolik dokonalé, že i cvičené oko kuchynáře spoj nepozná.

V kuchyni nechybí moderní vestavné spotřebiče, dále osvětlení, které klade důraz na moderní požadavky z pohledu designu a funkčnosti a inteligentní elektroinstalace od partnera ABB.

Obývací místnost

V obývací místnosti nalezne celá rodina Vlčkových dostatek prostoru k relaxaci a přímý vstup na venkovní terasu, který zajišťují hliníkové HS portály od partnera VEKRA. Příjemnou atmosféru během sychravých večerů navodí integrovaný krb do komínu od partnera Schiedel. Nechybí zde ani ambientní osvětlení, které skvěle podtrhuje celou atmosféru.

Koupelny

V domě se nachází celkem tři koupelny, které poskytují dostatek komfortu pro celou rodinu a případně i pro hosty. Design koupelen byl zvolen nadčasově, aby splňoval požadavky moderního bydlení i po mnoha letech od výstavby. Sanitu a koupelnové vybavení dodal partner SIKO.

Osvětlení

Rodina Vlčkových využila možnosti, které nabízí dnešní trh s osvětlením a integrovala do vzorového e4 domu mnoho funkčních, designových světel. Schodiště má navíc zabudovaná čidla, tím pádem se za tmy rozsvítí automaticky po vstupu na první schodnici, což ocení celá rodina.

Grafika na web WTS

Vizualizace interiéru vzorového e4 domu

Kuchyň a jídelna

Vzorový e4 dům - Újezd - Vizualizace - kuchyň a  jídelna

Obývací místnost

Vzorový e4 dům - Újezd - Vizualizace - obývací místnost

Hlavní koupelna v podkroví

Vzorový e4 dům - Újezd - Vizualizace - koupelna hlavní podkroví

Koupelna k ložnici

Vzorový e4 dům - Újezd - Vizualizace - koupelna k ložnici
Grafika na web WTS
devider horizontal white line grey background

Kontakt na architekta projektu

e4 dům od wienerbergeru - Újezd

Ing. arch. Bohumil Brůža
Starobrněnská 3, 602 00 Brno
+420 776 660 360
bruza@acreo.cz

devider horizontal white line grey background
Grafika na web WTS

Novinky v programu e4 dům od wienerbergeru

Újezd u Průhonic (2019-2020)

Grafika na web WTS
Wienerberger e4 dům - firma

Bezplatná konzultace

Řešte vaše bydlení s odborníky