Pohled ze zahrady - typový projekt  BERTA 2.05 | Wienerberger e4 dům

Typový projekt BERTA 2.05


Typová řada rodinných domů pod společným názvem „BERTA“ representuje nejen cenově dostupné  přízemní rodinné domy, ale též tzv. „růstové domy“ – tedy domy s promyšlenou koncepcí rozšiřování. V případě typové řady projektů Berta jde skutečně o rozšiřování domu, neboť všechny domy a jejich jednotlivá rozšíření, zachovávají přízemní charakter rodinného domu.

Postupné rozšiřování domu je výhodné i z hlediska dostupnosti počáteční investice-nákladů na výstavbu malého, plně funkčního rodinného domu.

Berta 2.05 představuje finální formu s dispozicí 4+kk.

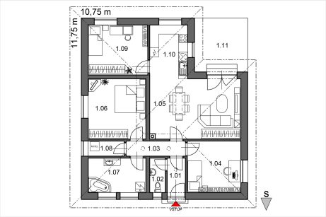
Půdorys přízemí

Půdorys přízemí - typový projekt  BERTA 2.05 | Wienerberger e4 dům

 

 

  • Zastavěná plocha: 114,10 m2
  • Užitná plocha: 93,70 m2
  • Výška hřebene: 4,96 m
  • Sklon střechy 23°
  • Dispozice: 4+kk
  • Kompletní typový projekt: 137 940 Kč vč. DPH
  • Zděný dům: 4 870 000 Kč

Pohled z ulice

Pohled z ulice - typový projekt  BERTA 2.05 | Wienerberger e4 dům

Pohledy typového projektu Berta 2.05

Pohledy ze všech stran - typový projekt  BERTA 2.05 | Wienerberger e4 dům

Mohly by vás také zajímat další typové projekty

Pohled ze zahrady - typový projekt - LEONA I KLASIK | Wienerberger e4 dům

Kontakt na AKK

Architektonická kancelář křivka

Pevná linka