Projekt moderního dvoupodlažního rodinného domu s dispozicí 5+kk a dvougaráží. Dům má obdélníkový půdorys,
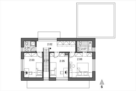
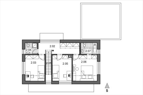
a je zastřešen sedlovou střechou doplněnou o vikýře na obou stranách. Přízemí rodinného domu nabídne samostatné WC, technickou místnost, pokoj pro hosty s vlastní malou koupelnou a šatnou, spíž a kuchyň spojenou s obývacím pokojem, ze kterého se vstupuje na zahradu. Součástí obývacího pokoje je komín a schodiště do prvního patra. V patře najdeme tři ložnice a dvě koupelny s WC.
