Pohled ze zahrady - typový projekt - DARINA 1.01 | Wienerberger e4 dům

Typový projekt DARINA 1.01



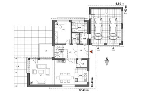
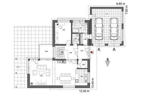
Prostorně řešený rodinný dům 5+kk s dvougaráží. Koncepce dispozice domu umožňuje umístění severní fasády domu se štítem na hranici pozemku. Po vstupu do domu nalezneme po pravé ruce šatnu (průchozí do garáže pro dvě auta), koupelnu, samostatné WC a pracovnu. Po levé straně můžeme vstoupit rovnou do spíže a následně do kuchyně nebo hlavním vstupem do prostoru tvořeného kuchyní, jídelnou a obývacím pokojem s krbem.

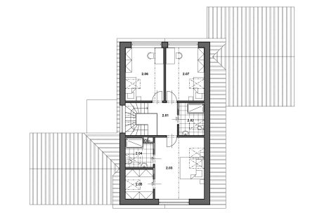
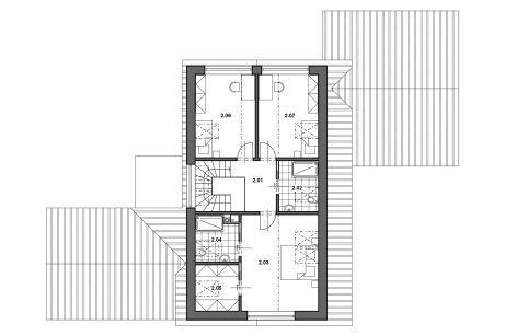
Z obývacího pokoje je možný výstup na zahradu, na krytou terasu nebo do zimní zahrady. V podkroví jsou k dispozici dva dětské pokoje, koupelna a ložnice rodičů s vlastní druhou koupelnou a šatnou. Celý rodinný dům je zastřešen třemi sedlovými střechami.

 

 

  • Zastavěná plocha: 200,93 m2
  • Užitná plocha: 173,61 m2
  • Výška hřebene: 8,27 m
  • Sklon střechy 40, 36, 30°
  • Dispozice: 5+kk / 5+1
  • Kompletní typový projekt: 137 940 Kč vč. DPH
  • Zděný dům: 8 320 000 Kč

Půdorys přízemí

Půdorys přízemí - typový projekt - DARINA 1.01 | Wienerberger e4 dům

Půdorys patra

Půdorys patra - typový projekt - DARINA 1.01 | Wienerberger e4 dům

Pohled z ulice

Pohled z ulice - typový projekt - DARINA 1.01 | Wienerberger e4 dům

Pohledy typového projektu DARINA 1.01

Pohledy ze všech stran - typový projekt - DARINA 1.01 | Wienerberger e4 dům

Mohly by vás také zajímat další typové projekty

Pohled ze zahrady - typový projekt - LEONA I KLASIK | Wienerberger e4 dům

Kontakt na AKK

Architektonická kancelář křivka

Pevná linka