Pohled ze zahrady - typový projekt - ELEN 1.10 KLASIK | Wienerberger e4 dům

Typový projekt ELEN 110 KLASIK


V přízemí rodinného domu se nachází obývací pokoj spojený s kuchyňským koutem a hala se schodištěm, pod kterým je šatna. Dále podle zvolené varianty – spíž, technická místnost, WC, sprchový kout nebo obytný pokoj.

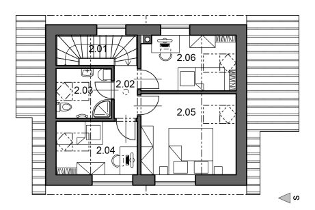
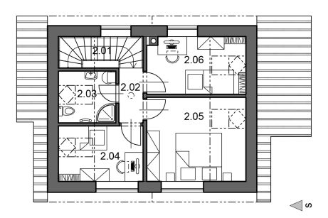
První patro nabízí dvě varianty řešení s koupelnou, WC a třemi ložnicemi, třetí varianta je dispozičně řešena dvěma ložnicemi, koupenou s WC a pracovním koutem.

Rodinný dům ELEN 110 je také navržen ve dvou architektonických řešení TREND a KLASIK. Je proto vhodný pro výstavbu jak ve městě, tak i na venkově.

 

 

  • Zastavěná plocha: 72,09 m2
  • Užitná plocha: 95,30 m2
  • Výška hřebene: 7,98 m
  • Sklon střechy 40°
  • Dispozice: 4+kk
  • Kompletní typový projekt: 137 940 Kč vč. DPH
  • Zděný dům: 4 020 000 Kč

Půdorys přízemí

Půdorys přízemí - typový projekt - ELEN 1.10 KLASIK | Wienerberger e4 dům

Půdorys patra

Půdorys patra - typový projekt - ELEN 1.10 KLASIK | Wienerberger e4 dům

Pohled z ulice

Pohled z ulice - typový projekt - ELEN 1.10 KLASIK | Wienerberger e4 dům

Pohledy typového projektu ELEN 110 KLASIK

Pohledy ze všech stran - typový projekt - ELEN 1.10 KLASIK | Wienerberger e4 dům

Mohly by vás také zajímat další typové projekty

Pohled ze zahrady - typový projekt - LEONA I KLASIK | Wienerberger e4 dům

Kontakt na AKK

Architektonická kancelář křivka

Pevná linka