Pohled ze zahrady - typový projekt - ELSA I TREND | Wienerberger e4 dům

Typový projekt ELSA I TREND



Rodinný dům ELSA I TREND vznikl ze samostatného typového projektu ELSA jako rodinný dům se dvěma byty tak, aby mohl být umístěn na jednom pozemku, který nebylo možné rozdělit na dva, aby mohl být postaven jako dvojdům.

Dispozice jsou identické 4+kk, popišme tedy pouze jednu z nich, druhá je pouze zrcadlové otočená. Do jednoho z bytů vcházíme přes zádveří s prostorem pro botník. Z navazující chodby je nástup na schodiště do patra, šatny jsou průchozí do technické místnosti. Na druhém konci chodby vstupujeme do obývacího pokoje s kuchyňským koutem.

Pod schodištěm je malé WC. V patře s plnohodnotným rovným stropem jsou k dispozici tři ložnice a koupelna s WC. Je pamatováno na komín tak, aby bylo možné v obývacím pokoji osadit krb nebo krbovou vložku. Celý rodinný dům se dvěma byty je osazen pultovou střechou. Moderní vzhled celého domu ještě podtrhují rohová okna v horním patře.

 

 

  • Zastavěná plocha: 151,46 m2
  • Užitná plocha: 225,46 m2
  • Výška hřebene: 8,03 m
  • Sklon střechy 7°
  • Dispozice: 2x 4+kk / 4+1
  • Kompletní typový projekt: 137 940 Kč vč. DPH
  • Zděný dům: 10 720 000 Kč

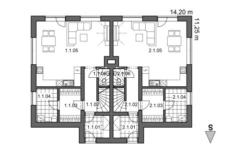
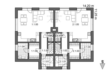
Půdorys přízemí

Půdorys přízemí - typový projekt - ELSA I TREND | Wienerberger e4 dům

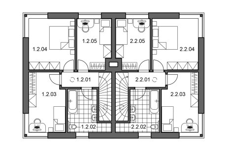
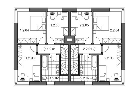
Půdorys patra

Půdorys patro - typový projekt - ELSA I TREND | Wienerberger e4 dům

Pohled z ulice

Pohled z ulice - typový projekt - ELSA I TREND | Wienerberger e4 dům

Pohledy typového projektu ELSA I TREND

Pohledy ze všech stran - typový projekt - ELSA I TREND | Wienerberger e4 dům

Mohly by vás také zajímat další typové projekty

Pohled ze zahrady - typový projekt - LEONA I KLASIK | Wienerberger e4 dům

Kontakt na AKK

Architektonická kancelář křivka

Pevná linka