Pohled ze zahrady - typový projekt - JUDITA 3.02 | Wienerberger e4 dům

Typový projekt JUDITA 3.02




Typový projekt dvoupodlažního rodinného domu o velikosti bytové jednotky 5+1 s garáží. Dům je svým dispozičním uspořádáním a velikostí vhodný pro 4-6 osob.

Dispozice je řešena velice úsporně s minimem komunikačních prostor. Kuchyň, jídelna a obývací pokoj jsou spojeny ve velkou obytnou místnost. V prostoru pod schody je úložný prostor, dále je v přízemí menší koupelna včetně WC.

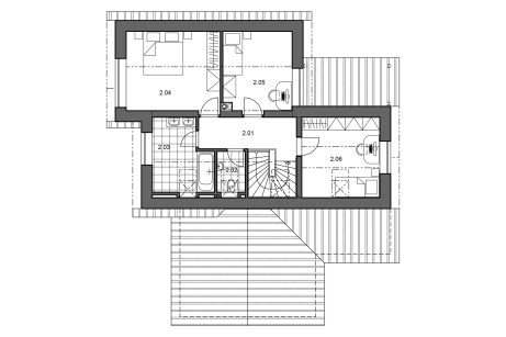
Obytnou místnost v přízemí lze využít jako další dětský pokoj nebo jako pracovnu. Krytá terasa je ideální pro posezení u venkovního krbu. Fasáda je díky členitosti půdorysu a rozměrům oken velice živá a atraktivní. Přesto se díky sedlové střeše s velkým sklonem hodí i do klasické nebo venkovské zástavby. V podkroví jsou tři ložnice, samostatné WC a prostorná koupelna.

 

 

  • Zastavěná plocha: 134,78 m2
  • Užitná plocha: 164,98 m2
  • Výška hřebene: 8,22 m
  • Sklon střechy 40°
  • Dispozice: 5+kk / 5+1
  • Kompletní typový projekt: 137 940 Kč vč. DPH
  • Zděný dům: 7 070 000 Kč

Půdorys přízemí

Půdorys přízemí - typový projekt - JUDITA 3.02 | Wienerberger e4 dům

Půdorys patra

Půdorys patro - typový projekt - JUDITA 3.02 | Wienerberger e4 dům

Pohled z ulice

Pohled z ulice - typový projekt - JUDITA 3.02 | Wienerberger e4 dům

Pohledy typového projektu ELSA I TREND

Pohledy ze všech stran - typový projekt - JUDITA 3.02 | Wienerberger e4 dům

Mohly by vás také zajímat další typové projekty

Pohled ze zahrady - typový projekt - LEONA I KLASIK | Wienerberger e4 dům

Kontakt na AKK

Architektonická kancelář křivka

Pevná linka