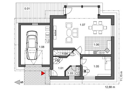
Klasický dvoupodlažní rodinný zastřešený sedlovou střechou s dispozicí 5+kk a garáží. V prostorné garáži je počítáno
s místění kotle a ostatním technickým zařízením domu. Přízemí rodinného domu nabídne samostatné WC, pokoj
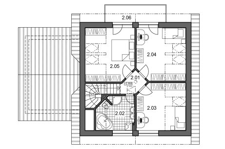
pro hosty a prostorný obývací pokoj s kuchyňským koutem. Obývací pokoj je se zahradou spojený vystouplým proskleným výklenkem, na kterým je v horním patře umístěn balkón přístupný ze dvou pokojů. Dostatek denního světla v podkroví je zajištěn vhodným umístěním střešních oken a světlovodem na chodbě.
