Pohled ze zahrady - typový projekt - LEONA I KLASIK | Wienerberger e4 dům

Typový projekt LEONA I KLASIK


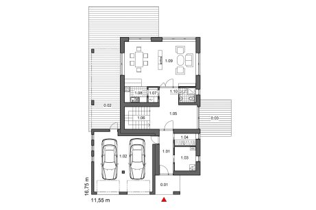
Projekt řeší návrh dvoupodlažního rodinného domu s dispozicí 5+kk a dvougaráží o celkové užitné ploše 221,21 m2.
V přízemí domu se v oddělené části nachází dvougaráž průchodná s domem přes zádveří. Z garáže je také možné vystoupit přímo na venkovní zahradní terasu. Přízemí domu dále nabídne k využití technickou místnost, šatnu, koupelnu s WC a obývací pokoj spojený kuchyňským koutem a spíží. Horní patro je přístupné díky schodišti v hale,
ze které je přímý vstup na zahradu a na druhou menší terasu. Hlavní terasa je na zrcadlové straně domu a je zároveň částečně krytá. Nadzemní podlaží nabízí 4 ložnice, dvě koupelny a dvě šatny. Rodinný dům je zastřešen sedlovou střechou s mírným přesahem.

 

 

  • Zastavěná plocha: 187,89 m2
  • Užitná plocha: 221,21 m2
  • Výška hřebene: 8,40 m
  • Sklon střechy 30°
  • Dispozice: 5+kk+2G
  • Kompletní typový projekt: 137 940 Kč vč. DPH
  • Zděný dům: 10 170 000 Kč

Půdorys přízemí

Půdorys přízemí - typový projekt - LEONA I KLASIK | Wienerberger e4 dům

Půdorys patra

Půdorys patra - typový projekt - LEONA I KLASIK | Wienerberger e4 dům

Pohled z ulice

Pohled z ulice - typový projekt - LEONA I KLASIK | Wienerberger e4 dům

Pohledy typového projektu LEONA I KLASIK

Pohledy ze všech stran - typový projekt - LEONA I KLASIK | Wienerberger e4 dům

Mohly by vás také zajímat další typové projekty

Pohled ze zahrady - typový projekt - LEONA I KLASIK | Wienerberger e4 dům

Kontakt na AKK

Architektonická kancelář křivka

Pevná linka