Pohled ze zahrady - typový projekt - MARCELA 1.01 | Wienerberger e4 dům

Typový projekt MARCELA 1.01





Typový projekt kompaktního patrové rodinného domu s dispozicí 6+kk. Vstup do domu je situován z jižní strany přes zastřešené závětří. Zádveří domu propojuje technickou místnost, pracovnu a halu spojující zbytek dispozice rodinného domu. Hala, ve které se nachází schodiště do podkroví spojuje pokoj pro hosty, který má vlastní šatnu, dále samostatné WC, malou koupelnu a obývací pokoj. Obývací pokoj je spojený s kuchyní, která je z jedné poloviny oddělena zdí. Ke kuchyni přiléhá v prostoru za schodištěm i spíž. Ta je v případě potřeby přístupná také rovnou z haly. Z obývacího pokoje je možný přístup na zahradu na dvou stěnách přes prosklenou část fasády.

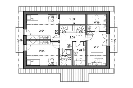
Na zahradu je možný výstup také přímo z kuchyně. V prvním patře zaujme hned po příchodu otevřený strop kopírující tvar střechy s dvěma střešními okny, které zajišťují dostatek denního světla. Patro rodinného domu nabídne dva dětské pokoje, pro které je určena jedna menší koupelna se sprchovým koutem a druhou koupelnu s vanou, určenou pro ložnici rodičů. Ložnice rodičů disponuje také vlastní prostornou šatnou. Z pokojů je možný výstup na balkony, které jsou umístěny na obou štítových stranách rodinného domu.

V dispozici domu je kromě komínu pamatováno i na umístění prostoru pro rekuperační jednotku KombiAir.

 

 

  • Zastavěná plocha: 122,74 m2
  • Užitná plocha: 173,61 m2
  • Výška hřebene: 7,95 m
  • Sklon střechy 30°
  • Dispozice: 6+kk / 6+1
  • Kompletní typový projekt: 137 940 Kč vč. DPH
  • Zděný dům: 7 360 000 Kč

Půdorys přízemí

Půdorys přízemí - typový projekt - MARCELA 1.01 | Wienerberger e4 dům

Půdorys patra

Půdorys patro - typový projekt - MARCELA 1.01 | Wienerberger e4 dům

Pohled z ulice

Pohled z ulice - typový projekt - MARCELA 1.01 | Wienerberger e4 dům

Pohledy typového projektu ELSA I TREND

Pohledy ze všech stran - typový projekt - MARCELA 1.01 | Wienerberger e4 dům

Mohly by vás také zajímat další typové projekty

Pohled ze zahrady - typový projekt - LEONA I KLASIK | Wienerberger e4 dům

Kontakt na AKK

Architektonická kancelář křivka

Pevná linka