Pohled ze zahrady - typový projekt - NERO 2001.2 | Wienerberger e4 dům

NERO 2001.2




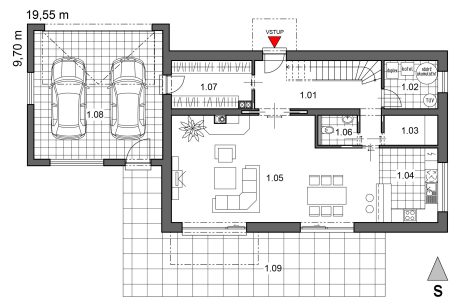
Typový projekt moderního dvoupodlažního rodinného domu o velikosti bytové jednotky 4+kk s dvougaráží. Rodinný dům je navržen tak, aby splňoval všechny zásady pro nízkoenergetické domy. Rodinný dům má v denní zóně (přízemí) prostornou šatnu, technickou místnost i spíž u kuchyně. Šatna je průchozí do garáže pro dvě auta. Obývací pokoj s jídelnou a kuchyňským koutem jsou umístěny po celé délce jižní strany domu.

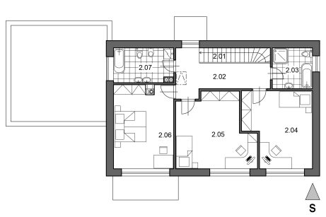
V noční zóně (druhé podlaží) jsou tři velké pokoje a dvě koupelny. Díky tomu je tento typový rodinný dům nadstandardně prostorný. Díky nasazení střechy je druhé podlaží plně využitelné – strop není zkosený. Jednoduché tvary dávají domu moderní výraz, ale díky sedlové střeše se hodí i do tradiční zástavby.

V dispozici domu je kromě komínu pamatováno i na umístění prostoru pro rekuperační jednotku KombiAir.

 

 

  • Zastavěná plocha: 157,8 m2
  • Užitná plocha: 215,43 m2
  • Výška hřebene: 7,06 m
  • Sklon střechy 15°
  • Dispozice: 4+kk / 4+1
  • Kompletní typový projekt: 137 940 Kč vč. DPH
  • Zděný dům: 8 910 000 Kč

Půdorys přízemí

Půdorys přízemí - typový projekt - NERO 2001.2 | Wienerberger e4 dům

Půdorys patra

Půdorys patro - typový projekt - NERO 2001.2 | Wienerberger e4 dům

Pohled z ulice

Pohled z ulice - typový projekt - NERO 2001.2 | Wienerberger e4 dům

Pohledy typového projektu NERO 2001.2

Pohledy ze všech stran - typový projekt - NERO 2001.2 | Wienerberger e4 dům

Mohly by vás také zajímat další typové projekty

Pohled ze zahrady - typový projekt - LEONA I KLASIK | Wienerberger e4 dům

Kontakt na AKK

Architektonická kancelář křivka

Pevná linka