Pohled ze zahrady - typový projekt - NERO 2005.2 | Wienerberger e4 dům

Typový projekt NERO 2005.2





Dvoupodlažní rodinný dům Nero 2005.2 s moderním vzhledem je svou velikostí a dispozicí 4+kk vhodný pro užívání 4 osob. I když není součástí domu garáž ani kryté parkovací stání, je možné si nechat garáž k domu bez problémů vyprojektovat a výhodně umístit k severní či západní fasádě domu. Rodinný dům je navržen tak, aby splňoval všechny zásady pro nízkoenergetické domy.

 

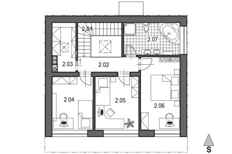
Vstup do domu situovaný na severní fasádě domu se otevírá do prostorné haly s volným pohledem do horního patra. V přízemí s přístupem přímo z haly se nachází prostorná šatna, dále technická místnost umožňující umístění veškerých potřebných zařízení pro bezproblémový chod domu a to i pro nízkoenergetické domy. Hlavní dominantou přízemí je obývací pokoj spojený s kuchyňským koutem, z kterého je přístup do spíže. Jižní stěna obývacího pokoje je prosklená francouzskými okny, čímž je celý prostor místnosti příjemně prosluněn. V patře jsou situovány 2 prostorné pokoje s ložnicí při jižní fasádě, dále v severní části komora a prostorná koupelna s wc, která nabízí širokou paletu možností uspořádání vybavení od sprchových koutů, přes rohové vany až po možnost vestavěné sauny. Vstup na zahradu je přes dvoje jednokřídlé (popř. posuvné) prosklené dveře z obývacího pokoje.

 

Zastřešení je řešeno formou pultové střechy s přesahem na jižní straně tak, aby v letních měsících bránilo přehřívání pokojů v patře.

 

V dispozici domu je kromě komínu pamatováno i na umístění prostoru pro rekuperační jednotku KombiAir.

 

 

  • Zastavěná plocha: 84,52 m2
  • Užitná plocha: 125,02 m2
  • Výška hřebene: 6,75 m
  • Sklon střechy 8°
  • Dispozice: 4+kk / 4+1
  • Kompletní typový projekt: 137 940 Kč vč. DPH
  • Zděný dům: 5 150 000 Kč

Půdorys přízemí

Půdorys přízemí - typový projekt - NERO 2005.2 | Wienerberger e4 dům

Půdorys patra

Půdorys patro - typový projekt - NERO 2005.2 | Wienerberger e4 dům

Pohled z ulice

Pohled z ulice - typový projekt - NERO 2005.2 | Wienerberger e4 dům

Pohledy typového projektu ELSA I TREND

Pohledy ze všech stran - typový projekt - NERO 2005.2 | Wienerberger e4 dům

Mohly by vás také zajímat další typové projekty

Pohled ze zahrady - typový projekt - LEONA I KLASIK | Wienerberger e4 dům

Kontakt na AKK

Architektonická kancelář křivka

Pevná linka