Projekt moderního rodinného domu s dispozicí 5+kk. Hmota domu má tradiční obdélníkový půdorys se sedlovou střechou se sklonem 40°, moderní vzhled domu dodává střecha bez přesahu a velká střešní okna. K typovému projektu je navržena samostatná garáž s dílnou. Přízemí domu nabídne prostorný obývací pokoj spojený s velkým kuchyňským koutem a jídelnou. Jídelnu a obývací pokoj odděluje umístěný komín s krbem. Obývací pokoj, jídelna
i pracovna, která se nachází na opačné straně dispozice, jsou propojeny se zahradou. V podkroví rodinného domu
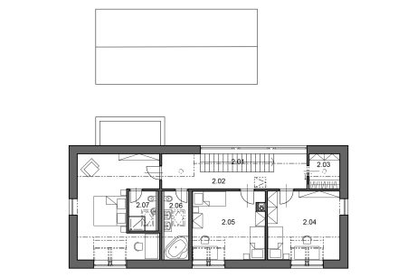
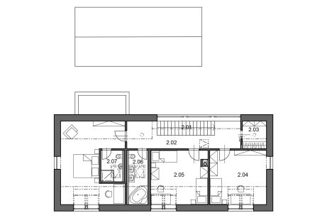
se nachází dva velké pokoje, koupelna, šatna a ložnice rodičů s vlastní koupelnou a koutem pro pracovní stůl.
