Pohled ze zahrady - typový projekt - NERO 2.0502 | Wienerberger e4 dům

Typový projekt NERO 2050.2

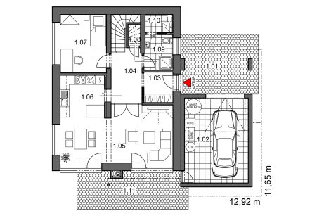
Tento typový projekt řeší rodinný dům s dispozici 5+kk s garáží. Vstup do rodinného domu je přes kryté závětří, které je tvořeno přesahem střechy z garáže. V garáži je uvažováno umístění technologického vybavení domu.

V přízemí rodinného domu jsou chodbou spojeny zádveří, koupelna s WC a prádelnou, schodiště do druhého patra, pracovna a kuchyňský kout s obývacím pokojem.

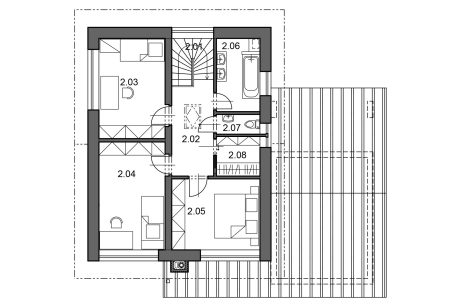
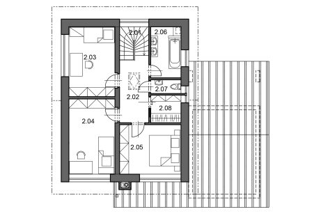
Horní patro s rovným stropem bez zkosení nabídne tři ložnice, koupelnu, samostatné WC a koupelnu.

 

 

  • Zastavěná plocha: 131,10 m2
  • Užitná plocha: 167,01 m2
  • Výška hřebene: 7,77 m
  • Sklon střechy 17°
  • Dispozice: 5+kk
  • Kompletní typový projekt: 137 940 Kč vč. DPH
  • Zděný dům: 7 430 000 Kč

Půdorys přízemí

Půdorys přízemí - typový projekt - NERO 2.0502 | Wienerberger e4 dům

Půdorys patra

Půdorys patra - typový projekt - NERO 2.0502 | Wienerberger e4 dům

Pohled z ulice

Pohled z ulice - typový projekt - NERO 2.0502 | Wienerberger e4 dům

Pohledy typového projektu NERO 2050.2

Pohledy ze všech stran - typový projekt - NERO 2.0502 | Wienerberger e4 dům

Mohly by vás také zajímat další typové projekty

Pohled ze zahrady - typový projekt - LEONA I KLASIK | Wienerberger e4 dům

Kontakt na AKK

Architektonická kancelář křivka

Pevná linka