Pohled ze zahrady - typový projekt - SANDRA I KLASIK | Wienerberger e4 dům

Typový projekt SANDRA I KLASIK


Typový projekt dvoupodlažního rodinného domu se sedlovou střechou s mírným sklonem. Tento rodinný dům je díky svému řešení dispozice 4+kk s dvougaráží vhodný na úzké pozemky, šířka domu je pouze 8,95 m.

Dvougaráž je předsazena před štítovou stranu rodinného domu a z jejího boku je vsup do domu. Z garáže je přímý vstup do zádveří, které v přízemí propojuje samostatné WC, šatnu, přes kterou se vchází do technické místnosti
a komory. Dispozice domu pak pokračuje přes halu se schodištěm do patra a velkou kuchyní s jídelnou, spíží
a v neposlední řadě obývacím pokojem, ze kterého je přístup na krytou terasu a dále zahradu.

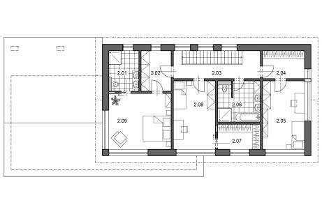
Horní patro nabídne dva dětské pokoje, každý s vlastní šatnou, prostornou koupelnu včetně WC a ložnici rodičů
s vlastní šatnoua koupelnou. Na fasádě domu je použita kombinace klasické fasády s lícovým zdivem.

 

 

  • Zastavěná plocha: 182,93 m2
  • Užitná plocha: 242,69 m2
  • Výška hřebene: 7,33 m
  • Sklon střechy 15°
  • Dispozice: 4+kk+2G
  • Kompletní typový projekt: 137 940 Kč vč. DPH
  • Zděný dům: 9 960 000 Kč

Půdorys přízemí

Půdorys přízemí - typový projekt - SANDRA I KLASIK | Wienerberger e4 dům

Půdorys patra

Půdorys patra - typový projekt - SANDRA I KLASIK | Wienerberger e4 dům

Pohled z ulice

Pohled ze zahrady - typový projekt - SANDRA I KLASIK | Wienerberger e4 dům

Pohledy typového projektu SANDRA I KLASIK

Pohledy ze všech stran - typový projekt - SANDRA I KLASIK | Wienerberger e4 dům

Mohly by vás také zajímat další typové projekty

Pohled ze zahrady - typový projekt - LEONA I KLASIK | Wienerberger e4 dům

Kontakt na AKK

Architektonická kancelář křivka

Pevná linka