Pohled ze zahrady - typový projekt - VIKTORIE 1.01 | Wienerberger e4 dům

Typový projekt VIKTORIE 1.01


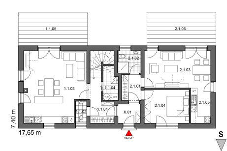
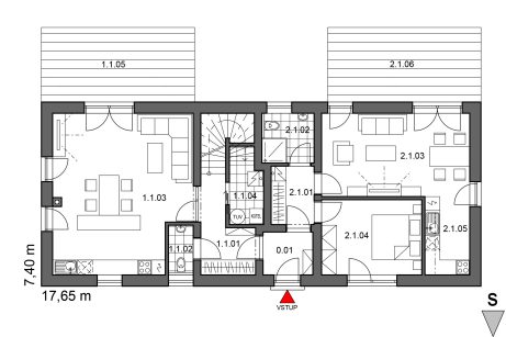
V přízemí domu nabízí 2+kk byt a v druhé polovině a v patře byt 4+kk. Dům má jeden vstup, ze zádveří se pak vstupuje do jednotlivých bytů, ty jsou od sebe odděleny akustickou příčkou, aby byl zajištěn dostatečný komfort. Menší z bytů nabídne k užívání ložnici pro dvě osoby, koupelnu s WC a obývací pokoj spojený s kuchyňským koutem. Druhý byt disponuje v přízemí samostatným WC, technickou místností a obývacím pokojem s kuchyní.

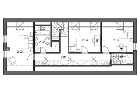
V patře jsou tři ložnice a dvě kouleny s WC. Horní chodba nabízí ideální prostor k umístění vestavěného nábytku a je ideálně osvětlena střešními okny. 

Celý rodinný dům, přestože nabízí dva byty, tvoří kompaktní obdélníková hmota se sedlovou střechou, na štítech bez přesahu, podélně s malým přesahem. Všechny pokoje v přízemí jsou propojeny se zahradou francouzskými okny. Francouzská okna jsou i ve štítech v patře.

 

 

  • Zastavěná plocha: 130,61 m2
  • Užitná plocha: 180,94 m2
  • Výška hřebene: 7,91 m
  • Sklon střechy 45°
  • Dispozice: 4+kk a 2+kk
  • Kompletní typový projekt: 137 940 Kč vč. DPH
  • Zděný dům: 8 580 000 Kč

Půdorys přízemí

Půdorys přízemí - typový projekt - VIKTORIE 1.01 | Wienerberger e4 dům

Půdorys patra

Půdorys patro - typový projekt - VIKTORIE 1.01 | Wienerberger e4 dům

Pohled z ulice

Pohled z ulice - typový projekt - VIKTORIE 1.01 | Wienerberger e4 dům

Pohledy typového projektu VIKTORIE 1.01

Pohledy ze všech stran - typový projekt - VIKTORIE 1.01 | Wienerberger e4 dům

Mohly by vás také zajímat další typové projekty

Pohled ze zahrady - typový projekt - LEONA I KLASIK | Wienerberger e4 dům

Kontakt na AKK

Architektonická kancelář křivka

Pevná linka