Pohled ze zahrady - typový projekt - VIKTORIE 2.01 | Wienerberger e4 dům

Typový projekt VIKTORIE 2.01



Typový projekt rodinného domu Viktorie 2.01 nabízí spojení dvou bytů dispozic 5+kk a 4+kk v jednom kompaktním moderním řešení s plochou střechou. Rodinný dům má jeden vstup, ze zádveří se pak vstupuje do jednotlivých bytů. Větší byt má v přízemí kromě, kuchyňského koutu s obývacím pokojem, koupelny WC a technické místnosti ještě pokoj pro hosty.

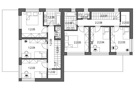
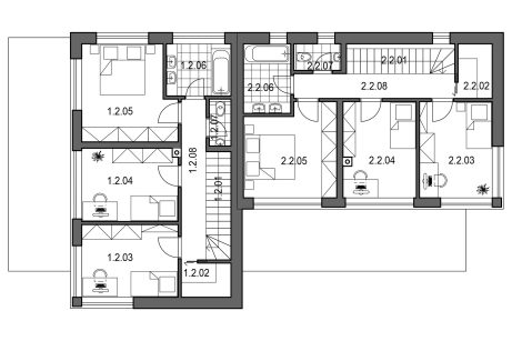
Z obývacího pokoje a jídelny je pak propojení a výstup na zahradu ze dvou stran domu. V podkroví se pak u obou bytů nachází klidová část se třemi ložnicemi, samostatným WC, šatnou a koupelnou.

Půdorysný tvar domu v přízemí tvoří obdélník, patro má pak tvar písmene L, což na celkové hmotě domu vytváří různorodý tvar. Celý rodinný dům je bohatě prosvětlen přes prosklené čísti fasády.

 

 

  • Zastavěná plocha: 173,64 m2
  • Užitná plocha: 246,49 m2
  • Výška hřebene: 6,60 m
  • Sklon střechy 0°
  • Dispozice: 5+kk a 4+kk
  • Kompletní typový projekt: 137 940 Kč vč. DPH
  • Zděný dům: 10 310 000 Kč

Půdorys přízemí

Půdorys přízemí - typový projekt - VIKTORIE 2.01 | Wienerberger e4 dům

Půdorys patra

Půdorys patro - typový projekt - VIKTORIE 2.01 | Wienerberger e4 dům

Pohled z ulice

Pohled z ulice - typový projekt - VIKTORIE 2.01 | Wienerberger e4 dům

Pohledy typového projektu VIKTORIE 2.01

Pohledy ze všech stran - typový projekt - VIKTORIE 2.01 | Wienerberger e4 dům

Mohly by vás také zajímat další typové projekty

Pohled ze zahrady - typový projekt - LEONA I KLASIK | Wienerberger e4 dům

Kontakt na AKK

Architektonická kancelář křivka

Pevná linka