Pohled ze zahrady - typový projekt - VIOLA 1.01 | Wienerberger e4 dům

Typový projekt VIOLA 1.01


Přestože patří rodinný dům Viola 1.01 vzhledem k zastavěné ploše mezi menší projekty, je díky praktickému využití  patra svou velikostí 4+1 vhodný i pro středně velkou rodinu. Moderní vzhled domu umocňuje kombinace dřeva
a kamene, díky kterým je strohá linie domu příjemně narušena a dům může najít své uplatnění jak ve městě, tak i na venkově.

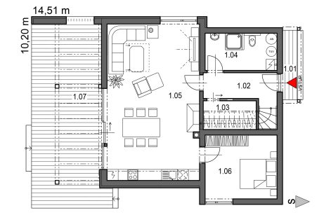
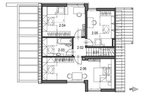
V přízemí se nachází prostorná obývací část se vstupem na terasu, rozprostírající se po celé jižní části domu. Kuchyně není přímo integrována v obývací části, ale navazuje na ni a ihned za ní je šikovně umístěna spíž. Nedílnou součástí přízemí je technická místnost, WC a dnes již nepostradatelná šatna. V patře, koncipovaném jako klidová část domu, jsou 3 ložnice, z nichž tu největší lze díky její podlouhlé dispozici a velikosti využít popřípadě z části i jako pracovnu.

 

 

  • Zastavěná plocha: 114,75 m2
  • Užitná plocha: 176,96 m2
  • Výška hřebene: 8,75 m
  • Sklon střechy 40°
  • Dispozice: 5+kk
  • Kompletní typový projekt: 137 940 Kč vč. DPH
  • Zděný dům: 7 140 000 Kč

Půdorys přízemí

Půdorys přízemí - typový projekt - VIOLA 1.01 | Wienerberger e4 dům

Půdorys patra

Půdorys patra - typový projekt - VIOLA 1.01 | Wienerberger e4 dům

Pohled z ulice

Pohled z ulice - typový projekt - VIOLA 1.01 | Wienerberger e4 dům

Pohledy typového projektu VIOLA 1.01

Pohledy ze všech stran - typový projekt - VIOLA 1.01 | Wienerberger e4 dům

Mohly by vás také zajímat další typové projekty

Pohled ze zahrady - typový projekt - LEONA I KLASIK | Wienerberger e4 dům

Kontakt na AKK

Architektonická kancelář křivka

Pevná linka