Pohled ze zahrady - typový projekt - ZORA 1.01 | Wienerberger e4 dům

Typový projekt ZORA 1.01




Typový rodinný dům Zora 1.01 nabízí netypický, avšak velmi zajímavý obytný prostor s galerií.

Hlavní cihlová hmota domu s obývacím pokojem a ložnicí rodičů má pultovou střechu – ve vyšší části je galerie s ložnicí a koupelnou rodičů, pod ní kuchyň, v nižší části je obývací pokoj. Takto je vytvořen obytný prostor s vyšší světlou výškou než je běžné a prosvětlený mimo jiné i střešními okny.

Obývací pokoj je propojen se zahradou velkými posuvnými francouzskými okny, je zde velká terasa. V navazující nižší části rodinného domu je pak vstupní prostor, technická místnost, samostatné WC, 2 dětské pokoje a koupelna.

 

 

  • Zastavěná plocha: 125,21 m2
  • Užitná plocha: 125,89 m2
  • Výška hřebene: 7,90 m
  • Sklon střechy 23°
  • Dispozice: 4+kk / 4+1
  • Kompletní typový projekt: 137 940 Kč vč. DPH
  • Zděný dům: 4 920 000 Kč

Půdorys přízemí

Půdorys přízemí - typový projekt - ZORA 1.01 | Wienerberger e4 dům

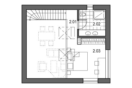
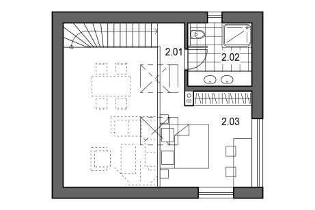
Půdorys patra

Půdorys patro - typový projekt - ZORA 1.01 | Wienerberger e4 dům

Pohled z ulice

Pohled z ulice - typový projekt - ZORA 1.01 | Wienerberger e4 dům

Pohledy typového projektu ZORA 1.01

Pohledy ze všech stran - typový projekt - ZORA 1.01 | Wienerberger e4 dům

Mohly by vás také zajímat další typové projekty

Pohled ze zahrady - typový projekt - LEONA I KLASIK | Wienerberger e4 dům

Kontakt na AKK

Architektonická kancelář křivka

Pevná linka